This home is not available in your area. Update your location to view available homes near you.

Prime Monte 043

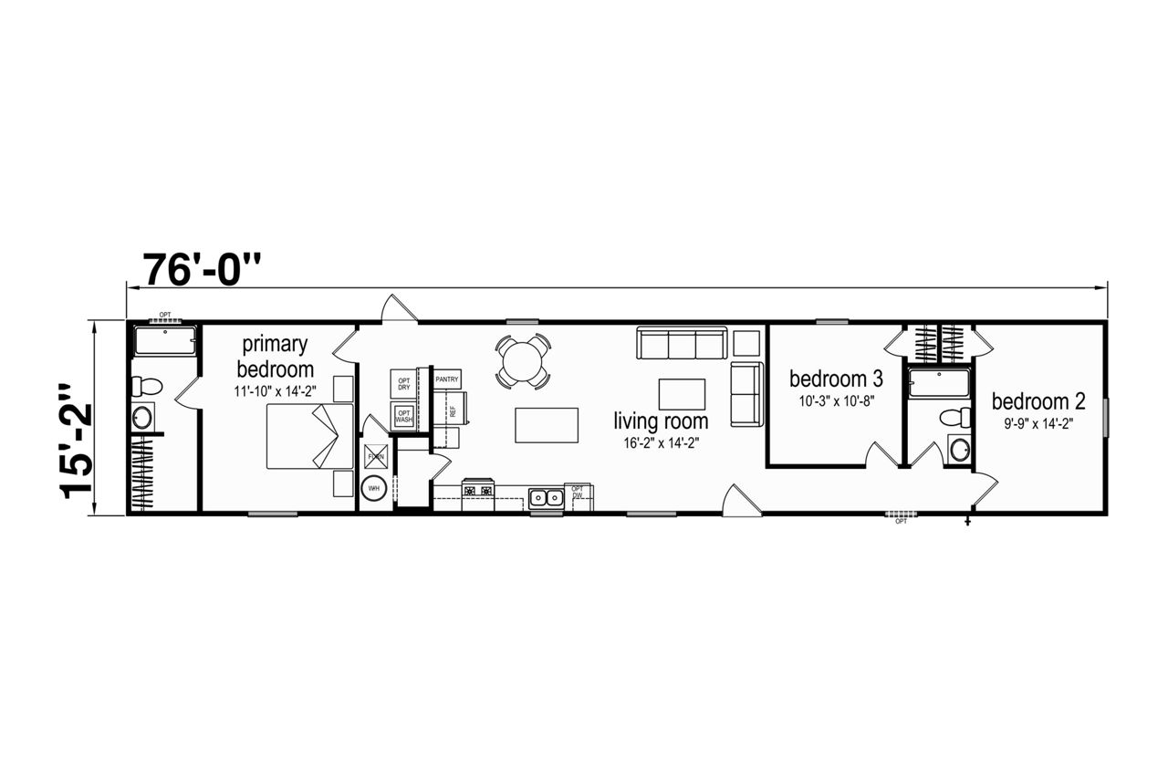
1153 Square Feet

  • 3 beds
  • 2 baths
  • Single-Section

This manufactured home is built to the federal (HUD) building code for manufactured housing.

Home Features

  • Walk-in Pantry
  • Kitchen Island
  • Utility Room

About the Champion Homes Brand

With more than 70 years of homebuilding experience, Champion Homes is a leader in building attractive and affordable manufactured and modular homes to call home.

Explore Champion Homes

Additional Resources

Estimated Monthly Payment

Use a calculator to find out what your estimated  monthly payment can be
Monthly Payment Calculator

Monthly Payment Calculator
Monthly Payment Calculator

What's the Home Buying Process Like?

Learn more about the process of buying a manufactured home
Home Buying Process

Contact a local retailer for home pricing. Additional fees, taxes, and delivery charges vary by region and home selected.

Get Local Pricing

Location Matters

To show you available homes in your preferred area, we need to know where you're planning to build.

Please share your desired location to browse all our Champion homes.

Enter your build location

Address or zip code you're looking to build in

Where are you looking to build?

What are you looking to build?



Number of Bedrooms

Number of Bathrooms

Curious where Champion homes are available?

Browse by location

Standard Features